
Ціна: 16 000 грн
Анни Ахматової вул., 9/18
Дарницький р-н
М Позняки
| № об'єкта | 111-940-758 |
|---|---|
| Кімнат | 1 |
| Поверх | 8 / 12 |
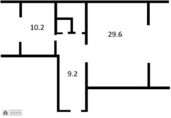
| Площа | 57 / - / 29 м2 |
Опис
Здається 1-к кв. Анни Ахматової, 9/18.Пропонується в оренду чудова студійна 1-кв., загальною площею 57кв.м.
Площа кухні-29.60м.
Якісний дизайнерський ремонт, двостороння квартира з утепленими та заскленими балконами, висота стелі – 3 метри, спальня та кухня-студія.
Повна реновація комунікацій: всі електропроводи, сантехнічні труби замінені.
Сучасне обладнання: нові радіатори, сантехніка, бойлер.
Повністю укомплектована: меблі, побутова техніка, кондиціонер, посудомийка, пральна машина.
Додатково: підігрів підлоги та підвіконь,.
Зручне розташування: неподалік метро «Позняки».
Поруч: зупинки міського транспорту, дитячий садок, школа, супермаркети(АТБ, Сільпо, Billa), аптека, медичні заклади, «Спортлайф».
Комфорт та безпека: охайний під'їзд, два ліфти, кодовий замок.
Ціна-16.000 грн+ залогова сума+ ком. послуги.Тип будинку: Житловий фонд 2001-2010-і;Тип стін: Цегляний;Cанвузол: Роздільний;Опалення: Централізоване;Ремонт: Авторський проект;Меблювання: З меблями;Побутова техніка: Мікрохвильова піч, Духова шафа, Посудомийна машина, Плита, Холодильник, Пральна машина, Варильна панель;Мультимедіа: Wi-Fi, Телевізор, Швидкісний інтернет;Комунікації: Електрика, Центральний водопровід, Центральна каналізація;Інфраструктура (до 500 метрів): Школа, Лікарня, поліклініка, Дитячий садок, Магазин, кіоск, Ринок, Парк, зелена зона, Супермаркет, ТРЦ, Дитячий майданчик, Зупинка транспорту, Відділення пошти, Відділення банку, банкомат, Бювет, Аптека, Ресторан, кафе;







































































