
Ціна: 1 100 $
Голосіївський просп. (проспект 40-річчя Жовтня)
Деміївка, Голосіївський р-н
М Деміївська
№ об'єкта | 111-931-816 |
---|---|
Кімнат | 4 |
Поверх | 17 / 23 |
Площа | 170 / - / 20 м2 |
Пропонується в оренду терміново! 4-кімнатна квартира Голосіїський п-кт. 1-ша здача!
Новий будинок.
Видова квартира біля Метро Демїївська -2 хв!
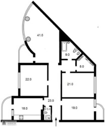
Голосіїський п-кт, 30Б, 17/23 поверх, 170 кв.м, H=3,2м Панорамні вікна.
3 санвузли. Гардеробна
Євроремонт.
Всі необхідні меблі і техніка.
Розвинена інфраструктура.
Добра транспортна розв'язка
Без тварин!
Не пишіть - телефонуйте.
Поки бачите оголошення - оренда актуальна.
Тип будинку: Житловий фонд від 2011 р.;Домашні улюбленці: Ні;Автономність при блекауті: Працює інтернет, Працює водопопостачання, Працює опалення;Планування: Роздільна;Cанвузол: 2 і більше;Опалення: Централізоване;Ремонт: Євроремонт;Меблювання: З меблями;Побутова техніка: Варильна панель, Духова шафа, Мікрохвильова піч, Посудомийна машина, Пральна машина, Праска, Пилосос;Мультимедіа: Wi-Fi, Швидкісний інтернет, Телевізор, Кабельне, цифрове ТБ, Супутникове ТБ; Комфорт: Кондиціонер, Підігрів підлоги, Ванна, Душова кабіна, Меблі на кухні, Гардероб, Балкон, лоджія, Панорамні вікна, Охорона території, Підземний паркінг, Ліфт, Грузовий ліфт; Комунікації: Центральний водопровід, Електрика, Центральна каналізація, Вивіз відходів, Асфальтована дорога;Інфраструктура (до 500 метрів): Дитячий садок, Школа, Бювет, Зупинка транспорту, Метро, Ринок, Магазин, кіоск, Супермаркет, ТРЦ, Парк, зелена зона, Дитячий майданчик, Аптека, Лікарня, поліклініка, Ресторан, кафе, Кінотеатр, театр, Відділення пошти, Відділення банку, банкомат, Автовокзал;Ландшафт (до 1 км.): Парк;Додатково: Можна іноземцям, Можна з дітьми.
Об'єкт на карті
Схожі об'єкти











