
Ціна: 1 300 $
Мокра вул. (Кудряшова)
Солом`янський р-н
М Вокзальна
| № об'єкта | 111-914-432 |
|---|---|
| Кімнат | 3 |
| Поверх | 14 / 25 |
| Площа | 109 / - / 14 м2 |
Опис
ЖК Пори Року, 3 к. квартира, вул. Мокра Ecoflow, ПАРКІНГ.Ексклюзивна пропозиція
Оренда квартири у ЖК Пори Року
Про квартиру:
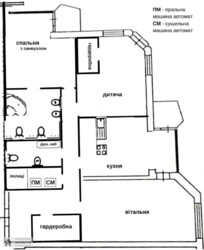
3 окремі кімнати (спальня з ванною кімнатою, дитяча кімната з гардеробом, вітальня)
кухня-їдальня
2 повноцінні санвузли
2 гардероби
прально-ська кімната
2 засклені балкони
Загальна площа квартири: 108 м2
Для вашого комфорту:
швидкісний інтернет
бойлер
керамічна плитка з підігрівом
кондиціонери
ecoflow
охоронна сигналізація
закритий двір
В оренду входить власне паркомісце в підземному паркінгу
Квартира оснащена пральними та сушильними машинами, мікрохвильовкою, посудомийною машиною тощо
Пропонуємо в довгострокову оренду від 1 року
Питання проживання тварин обговорюються додатково
У комплексі: декілька супермаркетів, спортклуб Sport Life, багато кав?ярень та інших закладів. До центра міста - 10-15 хв машиною.
Вартість 1300 євро/місяць+ оплата останнього місяця.Cанвузол: 2 і більше;Меблювання: З меблями;Побутова техніка: Посудомийна машина, Холодильник, Плита, Пральна машина, Сушильна машина, Духова шафа, Мікрохвильова піч;




































































